Описание
Характеристики
Отзывы
Сопутствующие файлы
Вопрос-Ответ 0
Вентилятор вытяжной жаростойкий Shuft EF 450E / 1ф
Вентиляторы серии EF предназначены для удаления воздуха из промышленных помещений с повышенным содержанием влаги и жира, для их сбора в конструкции предусмотрена специальная форма. Идеально подходят для кухонь общественного питания: кафе, рестораны, столовые, а также для помещений пищевого производства.
Преимущества и особенности:
- 120°С — максимальная температура перемещаемого воздуха.
- Корпус из оцинкованной стали — экологичный, прочный и долговечный материал.
- Изоляция — двойной корпус имеет 40 мм изоляцию, обеспечивая минимальный уровень шума.
- Высокоэффективная крыльчатка с загнутыми назад лопатками.
- Двигатель расположен на дверце — свободный доступ для обслуживания и защита от попадания жировых загрязнений.
- Степень защиты IP54 — двигатели и клеммная коробка имеют высокую степень защиты.
- Шариковые подшипники двигателя не требуют техобслуживания и рассчитаны на весь срок эксплуатации.
- Комплектуются кронштейном для надежного крепления.
- Произведено в Германии.
Управление:
- Модели 220В / 1 ф — регулирование осуществляется напряжением, при помощи 5-ступенчатых регуляторов SRE-E.
- Модели 380В / 3 ф — регулирование осуществляется при помощи частотных преобразователей.
Технические данные:

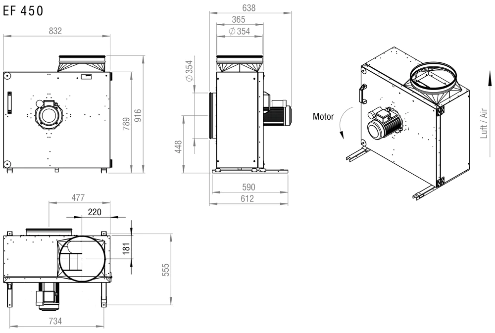
Габаритные и присоединительные размеры:

ShuftВсе товары бренда

Характеристики
Общие характеристики:
Бренд:
Shuft
Страна производитель:
Модель:
EF 450E
Размещение:
Внутреннее
Вариант исполнения:
жаростойкий
Способ монтажа:
устанавливается на ровное основание
Где применяются:
для общепита, для кухни, для кухонной вытяжки, для кафе, для кухни ресторана, для горячего воздуха, для горячего цеха
Гарантия:
3 года
Технические параметры:
Максимальный расход воздуха, м³/ч:
5780
Рабочий расход воздуха, м³/ч:
Максимальное давление, Па:
640
Частота вращения, об./мин.:
1450
Тип канала:
Круглый
Диаметр подключения воздуховода, мм
Тип лопаток:
загнуты назад
Материал корпуса вентилятора:
Оцинкованная сталь
Температура перемещаемой среды:
до 120 °C
Степень защиты двигателя, IP:
54
Электрические параметры:
Система электроснабжения:
Однофазная
Электропитание:
Потребляемая мощность вентилятора:
849 Вт
Ток:
3.75 А
Регулирование:
напряжением (тиристорные или трансформаторные регуляторы)
Габаритные размеры и вес:
Размеры прибора (Ш×В×Г), мм:
832 × 916 × 638
Размеры в упаковке (Ш×В×Г), мм:
930 × 1000 × 740 мм
Вес вентилятора:
72 кг
Вес в упаковке:
78 кг
Комплектация
Вентилятор:
1 шт.
Крепёжный кронштейн:
1 шт.
Паспорт:
1 шт.
Отзывов ещё нет — ваш может стать первым.
Все отзывы 0
Спасибо!Ваш отзыв появится на сайте после проверки.
Сопутствующие файлы
- ef_04_20.pdf (4.31 MBytes) - Паспорт. Руководство по эксплуатации.
- ds_tr_ts_ventilyatory_prom_1f_shuft_v_42549_21.pdf (2.27 MBytes) - Декларация о соответствии Вентилятор Shuft EF / 1 ф
Подборки товаров в категории



































































